Die exklusive Wohnanlage besteht aus 20 zweistöckigen Villen, die darauf ausgelegt sind, maximalen Komfort und Funktionalität zu bieten. Jede Villa verfügt über drei Schlafzimmer, zwei Badezimmer und ein Gäste-WC, die strategisch verteilt sind, um den Raum und das natürliche Licht optimal zu nutzen. Die Grundstücke, die zwischen 195 und 248 m² variieren, bieten großzügige Außenbereiche sowie einen privaten Pool von 5 x 3 Metern und eine praktische Außendusche, ideal, um das mediterrane Klima zu genießen.
Im Erdgeschoss befindet sich das Hauptschlafzimmer, das über ein elegantes Ankleidezimmer mit Kleiderstange, Schubladen und Regalen verfügt und somit viel gut organisierten Stauraum bietet. Die weiteren Schlafzimmer sind mit Einbauschränken mit Schiebetüren ausgestattet, ebenfalls mit Kleiderstange, Schubladen und Regalen. Die Badezimmer zeichnen sich durch ihr modernes Design aus, mit hängenden Möbeln, Aufsatzwaschbecken, integrierten Spiegeln sowie Duschwannen mit Glasabtrennung. Das Hauptschlafzimmer verfügt zudem über ein Bad en Suite. Auf derselben Etage befindet sich außerdem ein Gäste-WC.
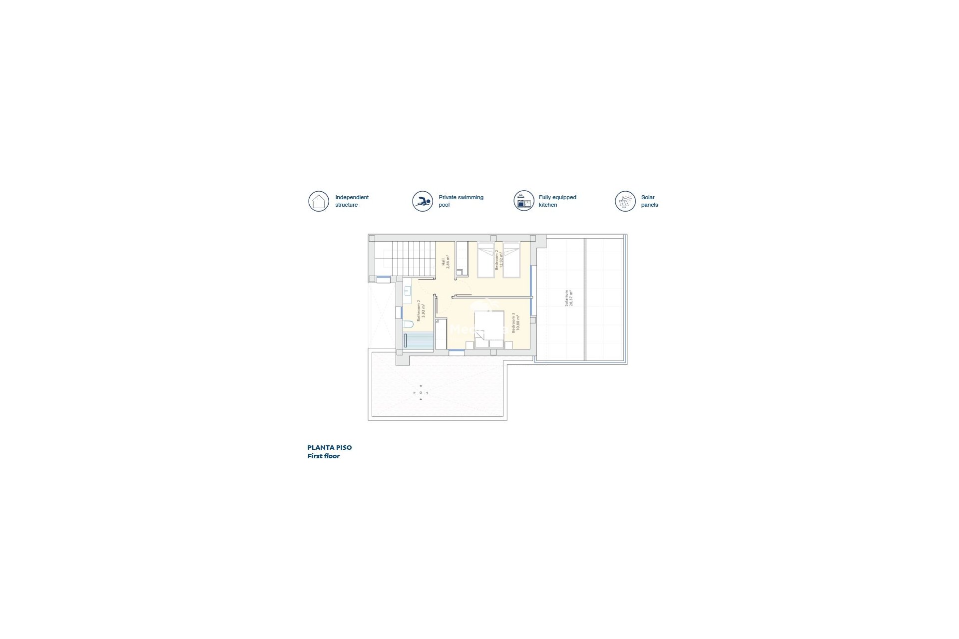
Im Obergeschoss befinden sich zwei Schlafzimmer, ein Badezimmer und ein großzügiges Solarium.
Die Villa bietet eine voll ausgestattete Küche, offen gestaltet und mit einer attraktiven Kochinsel, die Schränke und eine widerstandsfähige Porzellan-Arbeitsplatte integriert. Sie umfasst eine Spüle aus Edelstahl, eine hochwertige Einhebelarmatur sowie Geräte wie Dunstabzugshaube, Glaskeramikkochfeld, Backofen, Mikrowelle, Kühlschrank und Geschirrspüler.
Die bebaute Fläche im Erdgeschoss beträgt 86,51 m², die Gesamtbaufläche 147,03 m².
Die Villen verfügen über die Vorinstallation einer Klimaanlage über Lüftungskanäle in beiden Etagen, mit Rückluftgittern in allen Räumen. Für die Warmwasserversorgung ist ein 150-Liter-Elektroboiler installiert. Zusätzlich sind Solarpaneele mit Wechselrichter vorhanden, die zur Energieeffizienz des Hauses beitragen.
Die Außenbereiche werden durch 28 m² Terrassen sowie ein motorisiertes Zufahrtstor abgerundet, was Komfort und Sicherheit im Alltag gewährleistet.