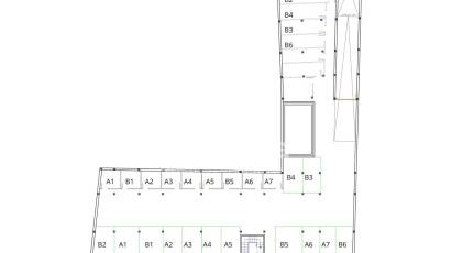
El exclusivo bloque residencial está compuesto por 13 apartamentos distribuidos entre planta baja y primera planta, diseñados para ofrecer confort y funcionalidad. Cada vivienda dispone de dos dormitorios y dos baños, ambos con plato de ducha, y unas calidades que destacan por sus suelos en imitación madera, creando un ambiente cálido y moderno. Las habitaciones cuentan con armarios empotrados, mientras que la cocina se entrega completamente amueblada y equipada con electrodomésticos; el resto de la vivienda se entrega sin amueblar.
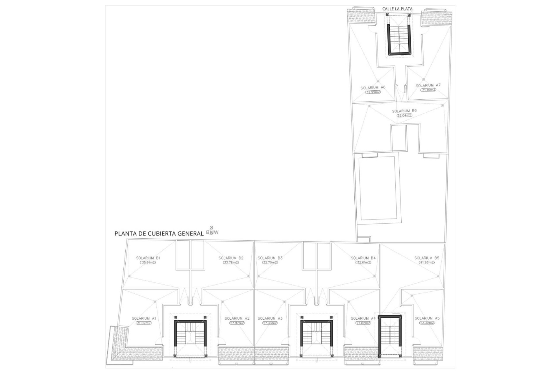
Las superficies construidas oscilan entre 84,19 m² y 100,09 m², adaptándose a distintas necesidades. Todos los apartamentos incluyen solárium privado de entre 28 m² y 55,54 m², ideal para disfrutar del clima mediterráneo. Las viviendas en planta baja disponen además de un patio interior que varía entre 4,13 m y 4,56 m, aportando luz y ventilación adicional.
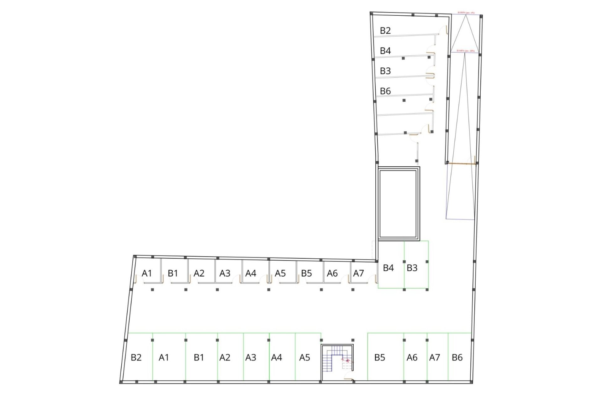
Los apartamentos de la primera planta cuentan con balcón o terraza de 2,9 m² a 9,09 m², perfectos para relajarse al aire libre. Todo el bloque ofrece plaza de garaje subterráneo y trastero en la misma planta, facilitando el acceso y la comodidad del día a día.
El conjunto residencial incluye una piscina comunitaria y se encuentra ubicado en el encantador pueblo Herrerías, una pedanía tranquila de Almería, con un legado histórico y arqueológico visible, un entorno rural apacible, y el encanto de los pequeños pueblos andaluces, ideal para quien busca tranquilidad, historia y naturaleza. Se caracteriza por su ambiente tranquilo y cercano a la naturaleza: está a unos 89 km de la capital provincial (Almería) y ofrece un entorno rural con paisajes propios del Levante Almeriense.